
概述
本公司积累了长期设计、制造各种电热灭菌箱的经验,吸收、消化了国外同类产品的优点,并结合我国国情,精心设计、开发了GMl00系列干热灭菌(除热源)柜装置。该装置符合FDA、新版GMP及US联邦标准209E的要求,为国内制药GMP改造,FDA认证提供了可信的帮助。
应用范围
设备适用于耐热材料的灭菌和除热源,如玻璃瓶、玻璃容器、西林瓶、金属容器、金属盘和设备部件等。
设备及文件体系符合标准
符合国家新版GMP标准
符合FDA要求
符合US联邦标准209E的要求
人性化控制系统
采用西门子PLC进行控制,运行可靠;
人机界面采用西门子触摸屏,性能可靠,操控方便;
软件系统根据制药领域的特殊要求专门设计,功能完善;
数据存储系统能够对温度、时间等运行参数进行存储,并打印输出。
技术特点
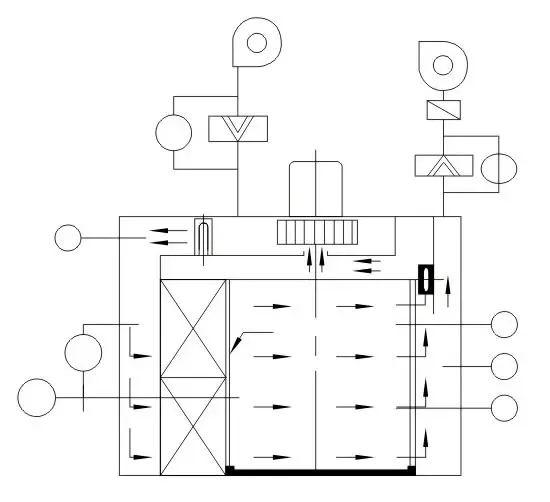
• 通过下述独特的技术设计,以显示灭菌柜真正的动态百级标准,及良好的温度分布均一度。
• 工艺室内温度采用多点测温探头检测;
• 为确保已灭菌产品在取出期间达到无菌,设备腔内压力确保达到正30Pa;
• 风机采用进口技术,为耐高温直联风机,自身带冷却系统,无轴承,无需润滑油,符合GMP要求;
• 采用独特技术的负压密封,避免了任何可能产生对被处理产品的污染。
• 工艺门带有双唇密封条,采用经过处理的特殊密封垫,可形成负压,从而在每个循环过程中均能够保证室门的良好密封,这种设计避免了热和可能产生的污染。
• 设备进风系统、腔体内、排风系统均装有高效过滤器,尘埃粒子拦截效率高达99.99%。
• 腔体内壁层流板为特殊设计的微孔结构,空气温度均匀分布,温差≤±5℃。
• 自动控制的气动门锁联动装置。
• 工艺室内压力与温度自动控制。
• 可在线尘埃粒子验证测试与温度分布测试:HEPA高效过滤器预留DOP验证口。
• 工艺室内主过滤器采用双密封结构,同时采用负压检测过滤器与柜样之间的密封,确保过滤器密封有效性。
灭菌物的旋转
结构特点
• 灭菌室调风装置有调风板和冲孔板结构,有效调节温度的分布;
• 工艺室采用氩弧焊满焊工艺并精密抛光,圆角结构,抛光度≤0.5u
• 特殊的隔热技术,保证设备外表面温度≤室温+15℃。
技术参数

本公司可按用户特殊要求定制生产,如有变动,恕不预先通知!