
概述
我公司制造的新型振动筛粉过滤机,过筛效率高,适用范围广,噪
音低、外形美观,具有滚动筛,平筛,摇动筛之功能。经技术鉴定
达到国内外同类产品先进水平。适用于微粉、颗粒状物料、混合液
的筛选和过滤。广泛使用在医药、化工、食品、化妆品、建材、环保、冶金等行业。是目前新型、理想的高精度、高效率符合
GMP要求的筛粉设备。
特点
• 连续生产,自动分级筛选;
• 封闭结构,无粉尘溢散;
• 噪音低,有自动清网机构;
• 启动迅速,停车平稳;
• 体积小,安装简单,操作和维护方便;
• 筛网利用率高,不易堵眼,更换筛网容易。
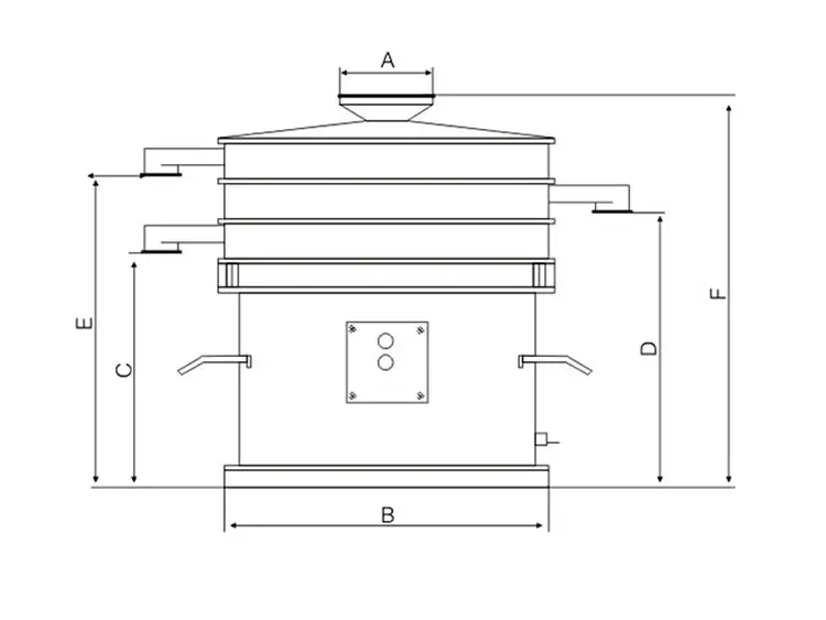
技术参数

本公司可按用户特殊要求定制生产,如有变动,恕不预先通知!